租房
下载正顺好房APP
华发世纪城三期 52㎡单身公寓 家私家电齐全 拎包入住 2600/月
空气清新
视野开阔
园林景
格局方正
华发世纪城三期
2600 元/月
整租
1房0厅1卫
高楼层/共31楼
53㎡
高档
西
2009年建
住宅
所在区域
南湾
房源编号
940943
更新日期
2026-04-04
OKHOME承诺真实房源,虚假举报有奖
加入对比
约车看房
联系客服
基本信息
基本属性
区域
南湾
片区
南湾
小区
华发世纪城三期
产权
楼层
高楼层/共31楼
电梯
装修
高档
朝向
西
空间结构
平层
楼龄
2009年
家具
全齐
家电
全齐
地板
木地板
景观
园景
小学
第二十五小学
中学
第十三中学
* 以上基本属性和交易属性信息仅供参考,购房时以房产证/不动产证信息为准
房源描述

房子独有的特点:

房源情况:
    【房源介绍】房子是华发世纪城三期52㎡单身公寓、精装修、家私家电齐全、拎包入住、业主诚心出租、看房预约!
 【小区概况】全优的生活配套、环境优美、小区管理优质、华发物业24小时为您保家护航
 【交通配套】多维度的交通、出行更方便、更快捷(前河西路、昌盛路、南湾北路、港珠澳大桥西延线、港珠澳大桥落脚点、白石桥直达夏湾、广珠城际轻轨延长线等交通四通八达)
    【学 校】容闳幼儿园、南湾小学、十三中、容闳学校、容闳书院等
 【商业街】华润万家超市、美丽星辰、纯真香熏、中影国际电影院、迈可思运动会所、大掌门(火锅)、MiuMiu酒吧街、M2酒吧、CI酒吧、900°烧烤、美吉姆、东北小馆、鸿桃会、汉堡王、星巴克等
推荐经纪人
黄广源 华发新天地二分行
中高档公寓
粤语
普通话
高端物业
4000781128 转 1759
房源图片
IMG_6611
客厅
IMG_6615
IMG_6612
IMG_6613
IMG_6614
客厅
客厅
客厅
入户花园
厨房
卫生间
卫生间
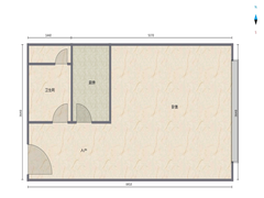
户型图
户型图
查看全部
航拍信息
地理位置
交通
教育
医疗
购物
生活
娱乐
公交站
地铁站
小区信息
华发世纪城三期
小区地址
香洲区拱北昌盛路376号
建造年代
2009
小区物业
华发物业
开 发 商
华发实业股份有限公司
管 理 费
2.5 元/平米*月
3
微信图片_20181019105542.jpg
4
客厅
外观
外观
微信图片_20180114130136.jpg
微信图片_20170912101844.jpg
微信图片_20181019105502.jpg
5
微信图片_20180815185740.jpg
景观
客厅
外景
外观
景观
客厅
s736E83F2E6BE4B50BDD845DAD42BE9A4.jpg
s79F42FA71EB74882B9046D1B069F8355.jpg
sFD2E41C3146B4F2BAA6938E11792490F.jpg
微信图片_20190902102154.jpg
s9F4CAD2E84AB40F5BB07FE94F5E15512.jpg
s666250893C254D5986CEFE2CD760C61C.jpg
s13D61E64800A4E1D919BD28344827AC9.jpg
客厅
平台
客厅
小区图
外观
外观
客厅
客厅
客厅
查看全部
历史成交
同类型租房
查看全部
同类型二手房
查看全部