租房
下载正顺好房APP
华发世纪城三期 55㎡1房2卫 欧式装修 全屋中央空调 私家电齐全 拎包入住
空气清新
格局方正
采光充足
视野开阔
华发世纪城三期
4500 元/月
整租
1房2厅2卫
中楼层/共19楼
56㎡
高档
2009年建
住宅
所在区域
南湾
房源编号
1784206
更新日期
2025-10-15
OKHOME承诺真实房源,虚假举报有奖
加入对比
约车看房
联系客服
基本信息
基本属性
区域
南湾
片区
南湾
小区
华发世纪城三期
产权
楼层
中楼层/共19楼
电梯
装修
高档
朝向
空间结构
楼龄
2009年
家具
全齐
家电
全齐
地板
磁砖
景观
河景
小学
第二十五小学
中学
第十三中学
* 以上基本属性和交易属性信息仅供参考,购房时以房产证/不动产证信息为准
房源描述

房子独有的特点:

房源情况:
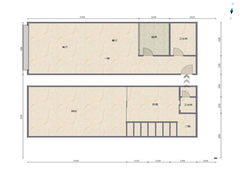
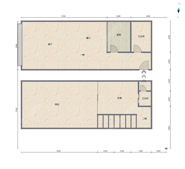
    【房源介绍】房子是华发世纪城三期55㎡复式1房2厅2卫、欧式装修、保养如新、格局方正、家私家电齐全、拎包入住、业主诚心出租、看房方便!
 【小区概况】全优的生活配套、环境优美、小区管理优*质、华发物业24小*时为您保家护航
 【交通配套】多维度的交通、出行更方便、更快捷(前河西路、昌盛路、南湾北路、港珠澳大桥西延线、港珠澳大桥落脚点、白石桥直达夏湾、广珠城际轻轨延长线等交通四通八达)
    【学*区】容闳幼儿园、南湾小学、十三中、容闳学校、容闳书院等
 【商业街】华润万家超市、美丽星辰、纯真香熏、中影国际电影院、迈可思运动会所、大掌门(火锅)、MiuMiu酒吧街、M2酒吧、CI酒吧、900°烧烤、美吉姆、东北小馆、鸿桃会、汉堡王、星巴克等
相关经纪人
黄广源 华发新天地二行
中高档公寓
粤语
普通话
高端物业
4000781128 转 1759
房源图片
客厅
客厅
中空
入户花园
厨房
卧室
卧室
卧室
卧室
衣帽间
卫生间
卫生间
卫生间
户型图
户型图
查看全部
航拍信息
地理位置
交通
教育
医疗
购物
生活
娱乐
公交站
地铁站
小区信息
华发世纪城三期
小区地址
香洲区拱北昌盛路37
建造年代
2009
小区物业
华发物业
开 发 商
华发实业股份有限公司
管 理 费
2.5 元/平米*月
3
微信图片_20181019105542.jpg
4
客厅
外观
外观
微信图片_20180114130136.jpg
微信图片_20170912101844.jpg
微信图片_20181019105502.jpg
5
微信图片_20180815185740.jpg
景观
客厅
外景
外观
景观
客厅
s736E83F2E6BE4B50BDD845DAD42BE9A4.jpg
s79F42FA71EB74882B9046D1B069F8355.jpg
sFD2E41C3146B4F2BAA6938E11792490F.jpg
微信图片_20190902102154.jpg
s9F4CAD2E84AB40F5BB07FE94F5E15512.jpg
s666250893C254D5986CEFE2CD760C61C.jpg
s13D61E64800A4E1D919BD28344827AC9.jpg
客厅
平台
客厅
小区图
外观
外观
客厅
客厅
客厅
查看全部
历史成交
同类型租房
查看全部
同类型二手房
查看全部