首页
新房
二手房
租房
工商铺
小区
资讯
在线委托
关于我们
租房
地图找房
空中看房
下载正顺好房APP
下载正顺好房APP
好房好生活OKHOME
柠溪 岭南世家华景园 格局方正 采光好 拎包入住 配套成熟
采光充足
格局方正
拎包入住
生活中心
收藏
分享
分享房源
扫一扫推荐给朋友
您的位置:
正顺好房网
>
租房
>
详情页
提示:您的浏览器不支持视频播放,请升级浏览器》》
视频看房
客厅
客厅
主卧
次卧
走廊
厨房
卫生间
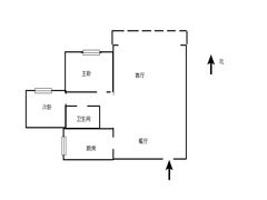
户型图
岭南世家华景园
2500
元/月
整租
2房2厅1卫
中楼层/共11楼
65㎡
简装
北
2003年建
住宅
所在区域
柠溪
房源编号
1361362
更新日期
2025-10-24
OKHOME承诺真实房源,
虚假举报
有奖
加入对比
约车看房
联系客服
基本信息
房源描述
房源点评
房源照片
小区信息
地理位置
加入对比
约车看房
推荐经纪人
基本信息
基本属性
区域
柠溪
片区
小区
岭南世家华景园
产权
楼层
中楼层/共11楼
电梯
有
装修
简装
朝向
北
空间结构
平层
楼龄
2003年
家具
部分
家电
部分
地板
磁砖
景观
无景
小学
十一小
中学
第五中学
* 以上基本属性和交易属性信息仅供参考,购房时以房产证/不动产证信息为准
房源描述
房子独有的特点:
1;房子精装好 保养好 采光好
2;周边环境: 配套完善,有柠溪市场,文化广场等
3;学校教育: 五中,十一小,世家幼儿园等
4;休闲娱乐: 文化广场,会所泳池等
5;交通设施: 香柠花园巴士站
推荐经纪人
付丛保
岭南世家分行
学区房
有车
高端物业
粤语
4000781128 转 1525
我的微信
扫一扫添加微信
房源房评
陈成松
凤凰花园三分行
一、房源优势: 1、全明格局,客厅宽敞大气; 2、黄金楼层; 二、户型介绍: 1、格局方正,使用率高达90% 2、客厅宽敞舒适、落地阳台让充足的阳光不留余地的闯进来 3、厨房宽敞,让您和家人有足够的空间展现私家厨艺 4、连接客厅和厨房之间是您和家人享受美味的餐厅,让您热情的招待亲朋好友 欢迎来电咨询:135-430-34651陈生
林贵华
金域蓝湾分行
1;房子精装好 保养好 采光好
2;周边环境: 配套完善,有柠溪市场,文化广场等
3;学校教育: 五中,十一小,世家幼儿园等
4;休闲娱乐: 文化广场,会所泳池等
5;交通设施: 香柠花园巴士站 欢迎大家找我带看 19807562334
房源图片
查看全部
航拍信息
全屏观看
地理位置
交通
教育
医疗
购物
生活
娱乐
公交站
地铁站
小区信息
查看更多 >
岭南世家华景园
小区地址
香洲区柠溪路529号
建造年代
2003
小区物业
珠海市葆力物业管理有限公司
开 发 商
珠海燊荣房产开发有限公司
管 理 费
1.2 元/平米*月
在售 56 套
在租 22 套
查看全部
历史成交
查看更多 >
同类型租房
查看全部
同类型二手房
查看全部
预车看房
预约提交成功我们有专人与您取得联系
预约日期
随时
星期五
24
星期六
25
星期日
26
星期一
27
星期二
28
星期三
29
星期四
30
您的称呼
先生
女士
手机号码
短信验证码
获取验证码
验证码
其他要求
提交预约
推荐经纪人
选择推荐经纪人进行咨询联系
付丛保
岭南世家分行
学区房
有车
高端物业
粤语
我的微信
扫一扫添加微信
扫码拨号
13697736606
手机登陆
密码登陆
立即登陆
立即登陆
虚假举报
房源ID(1361362)
您的称呼
手机号码
补充描述
验证码:
提 交
【房源】虚假举报属实,奖励 100 元。
【房评】虚假举报属实,奖励 50 元。
在线委托
房源对比
咨询客服QQ
联系客服
474738599
400-168-0808
咨询客服电话
09:30 - 18:30
周一至周六
微信公众号
随时随地关注珠海楼市
微信小程序
正顺好房官方小程序
官方APP
扫描下载正顺好房网APP
专家答疑
在线留言
返回顶部
在线留言
感谢您一直以来对正顺好房网的关注和支持,如果您在使用过程中遇到问题或意见建议请留言反馈给我们,谢谢!
如需我们跟您联系或答复的话,请您留下联系方式。
姓名
电话
E-mail
*
反馈内容
验证码
提交反馈
房源对比
修改
取消
新 房
二手房
租 房