首页
新房
二手房
租房
小区
资讯
在线委托
关于我们
登陆
/
注册
X
抢先专享楼盘优惠
二手房
地图找房
空中看房
下载正顺好房APP
下载正顺好房APP
好房好生活OKHOME
万科城山姆会员店, 轻轨明珠站旁 ,华发未来荟全新3房未入住过, 看房方便。
视野开阔
全南户型
入读名校
名牌家俱
收藏
分享
分享房源
扫一扫推荐给朋友
您的位置:
正顺好房网
>
二手房
>
详情页
提示:您的浏览器不支持视频播放,请升级浏览器》》
VR看房
视频看房
客厅
客厅
客厅
客厅
客厅
客厅
客厅
客厅
客厅
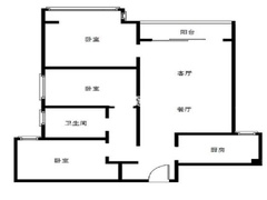
户型图
华发未来荟
257.0
万
32949元/㎡
首付51万 贷款206万 月供13457元,20年(仅供参考)
3房2厅1卫
高楼层/共38楼
78㎡
精装
南
2017年建
住宅
所在区域
新香洲
房源编号
1752513
更新日期
2025-05-08
OKHOME承诺真实房源,
虚假举报
有奖
加入对比
约车看房
联系客服
基本信息
房源描述
房源点评
房源照片
小区信息
地理位置
加入对比
约车看房
相关经纪人
基本信息
基本属性
区域
新香洲
片区
上冲
小区
华发未来荟
产权
楼层
高楼层/共38楼
电梯
有
状态
已使用
税费
装修
精装
朝向
南
空间结构
楼龄
2017年
家具
家电
地板
磁砖
景观
无景
小学
云峰小学
中学
凤山中学(文园集团)
税费参考
承担卖房税费
约 25700 元
承担买房税费
买房税费主要包括:契税:(1%、1.5%、2%、3%)首套或二套<90㎡按1%,首套>90㎡按1.5%,二套>90㎡按2%,第三套起及非住宅按3%
楼层保密说明
按照总层高/3,分为低楼层、中楼层、高楼层,共三个段
* 以上基本属性和交易属性信息仅供参考,购房时以房产证/不动产证信息为准
房源卖点
卖点一
1,交通方便,出门就是有轨电车,万科城旁,山姆会员店对面
卖点二
2,近前山轻轨明珠站,大型小区,华发物业管理好
卖点三
3,采光好,业主诚信出租
卖点四
4,看房方便,家私家电齐全,拎包即住。诚心出租
相关经纪人
王寒
翠桦万佳店
学区房
资深经纪人
高端物业
我的微信
扫一扫添加微信
扫码拨号
18825620619
朱琳
银桦新村分行
中高档公寓
别墅
商铺
写字楼
我的微信
扫一扫添加微信
扫码拨号
15812794448
房源图片
查看全部
房贷计算器
房屋总价
257.00
贷款成数
2成
3成
4成
5成
6成
7成
8成
8.5成
贷款类别
商业贷款
公积金贷款
组合贷款
贷款年限
30年(360期)
29年(348期)
28年(336期)
27年(324期)
26年(312期)
25年(300期)
24年(288期)
23年(276期)
22年(264期)
21年(252期)
20年(240期)
19年(228期)
18年(216期)
17年(204期)
16年(192期)
15年(180期)
14年(168期)
13年(156期)
12年(144期)
11年(132期)
10年(120期)
9年(108期)
8年(96期)
7年(84期)
6年(72期)
5年(60期)
4年(48期)
3年(36期)
2年(24期)
1年(12期)
商贷贷款额
商贷利率
首套3.00
二套3.00
公积金贷款额
公积金利率
参考利率2.85
参考利率3.325
立即计算
等额本息还款
等额本金还款
首付
万
贷款总额
万
月供
元
总利息
万
本息总额
万
首付
万
贷款总额
万
月供
元
每月递减
元
总利息
万
本息总额
万
注:本次计算仅作为购房参考,结合实际情况了解更精确首付、贷款方案,建议咨询专业顾问
首付和贷款情况咨询
航拍信息
全屏观看
地理位置
交通
教育
医疗
购物
生活
娱乐
公交站
地铁站
小区信息
查看更多 >
华发未来荟
小区地址
香洲区云峰路99号
建造年代
2017
小区物业
珠海市华发物业管理有限公司
开 发 商
珠海市华发集团/城建集团/有限公司
管 理 费
3.0 元/平米*月
在售 367 套
在租 68 套
查看全部
历史成交
查看更多 >
住宅
新香洲 - 华发未来荟
2房1厅1卫 | 65.37 ㎡ | 东南
查看价格
高楼层
成交时间:2025-03-18
住宅
前山 - 华发未来荟
3房2厅1卫 | 89.27 ㎡ | 东南
查看价格
低楼层
成交时间:2019-06-25
住宅
前山 - 华发未来荟
3房2厅1卫 | 86.58 ㎡ | 东南
查看价格
高楼层
成交时间:2021-06-02
住宅
前山 - 华发未来荟
3房2厅2卫 | 106.33 ㎡ | 南
查看价格
中楼层
成交时间:2020-06-05
同类型二手房
住宅
新香洲 - 华发未来荟
2房2厅1卫 | 64 ㎡ | 西南
97
万
15156 元/平米
中楼层
住宅
新香洲 - 华发未来荟
3房2厅1卫 | 79 ㎡ | 东北
160
万
20253 元/平米
中楼层
住宅
新香洲 - 华发未来荟
3房2厅1卫 | 79 ㎡ | 东南
145
万
18354 元/平米
中楼层
住宅
新香洲 - 华发未来荟
3房2厅2卫 | 107 ㎡ | 南
180
万
16822 元/平米
高楼层
住宅
新香洲 - 华发未来荟
2房2厅1卫 | 64.33 ㎡ | 南
140
万
21762.79 元/平米
低楼层
住宅
新香洲 - 华发未来荟
1房0厅1卫 | 34.37 ㎡ | 西北
86
万
25021.82 元/平米
中楼层
住宅
新香洲 - 华发未来荟
1房2厅1卫 | 47.3 ㎡ | 西南
125
万
26427.06 元/平米
中楼层
住宅
新香洲 - 华发未来荟
3房2厅1卫 | 89.62 ㎡ | 南
180
万
20084.8 元/平米
高楼层
住宅
新香洲 - 华发未来荟
2房2厅1卫 | 64.39 ㎡ | 东南
98
万
15220 元/平米
中楼层
住宅
新香洲 - 华发未来荟
1房0厅1卫 | 34 ㎡ | 北
52
万
15294 元/平米
低楼层
查看全部
同类型租房
住宅
新香洲 - 华发未来荟
3房2厅1卫 | 78 ㎡
3000
元
住宅
新香洲 - 华发未来荟
3房2厅2卫 | 107 ㎡
3000
元
住宅
新香洲 - 华发未来荟
2房2厅1卫 | 64.39 ㎡
2600
元
住宅
新香洲 - 华发未来荟
1房1厅1卫 | 44.29 ㎡
2100
元
住宅
新香洲 - 华发未来荟
2房2厅1卫 | 64 ㎡
2200
元
住宅
新香洲 - 华发未来荟
1房1厅1卫 | 42.94 ㎡
2200
元
住宅
新香洲 - 华发未来荟
1房1厅1卫 | 42.88 ㎡
1900
元
住宅
新香洲 - 华发未来荟
2房2厅1卫 | 74 ㎡
2500
元
住宅
新香洲 - 华发未来荟
2房1厅1卫 | 64 ㎡
2400
元
住宅
新香洲 - 华发未来荟
3房2厅1卫 | 78.99 ㎡
2700
元
查看全部
预车看房
预约提交成功我们有专人与您取得联系
预约日期
随时
星期四
8
星期五
9
星期六
10
星期日
11
星期一
12
星期二
13
星期三
14
您的称呼
先生
女士
手机号码
短信验证码
获取验证码
输入识别码
其他要求
提交预约
相关经纪人
选择相关经纪人进行咨询联系
王寒
翠桦万佳店
学区房
资深经纪人
高端物业
我的微信
扫一扫添加微信
扫码拨号
18825620619
朱琳
银桦新村分行
中高档公寓
别墅
商铺
写字楼
我的微信
扫一扫添加微信
扫码拨号
15812794448
手机登陆
密码登陆
立即登陆
立即登陆
虚假举报
房源ID(1752513)
您的称呼
手机号码
补充描述
验证码:
提 交
【房源】虚假举报属实,奖励 100 元。
【房评】虚假举报属实,奖励 50 元。
在线委托
房源对比
咨询客服QQ
联系客服
474738599
400-168-0808
咨询客服电话
09:30 - 18:30
周一至周六
微信公众号
随时随地关注珠海楼市
微信小程序
正顺好房官方小程序
官方APP
扫描下载正顺好房网APP
专家答疑
在线留言
返回顶部
在线留言
感谢您一直以来对正顺好房网的关注和支持,如果您在使用过程中遇到问题或意见建议请留言反馈给我们,谢谢!
如需我们跟您联系或答复的话,请您留下联系方式。
姓名
电话
E-mail
*
反馈内容
验证码
提交反馈
房源对比
修改
取消
新 房
二手房
租 房