首页
新房
二手房
租房
小区
资讯
在线委托
关于我们
二手房
地图找房
空中看房
下载正顺好房APP
下载正顺好房APP
好房好生活OKHOME
C派公寓,吉大少有带小区公寓,家私电齐全,拿李行就可直接入住
视野开阔
空气清新
格局方正
采光充足
收藏
分享
分享房源
扫一扫推荐给朋友
您的位置:
正顺好房网
>
二手房
>
详情页
提示:您的浏览器不支持视频播放,请升级浏览器》》
VR看房
视频看房
主卧
主卧
卫生间
小阳台
主卧
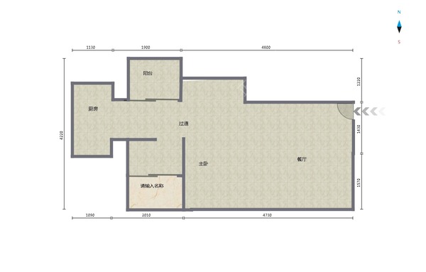
户型图
C派公寓
63.0
万
18000元/㎡
首付13万 贷款50万 月供3299元,20年(仅供参考)
1房0厅1卫
中楼层/共7楼
35㎡
精装
西南
1989年建
住宅
所在区域
吉大
房源编号
1284493
更新日期
2024-09-17
OKHOME承诺真实房源,
虚假举报
有奖
加入对比
约车看房
联系客服
基本信息
房源描述
房源点评
房源照片
小区信息
地理位置
加入对比
约车看房
相关经纪人
基本信息
基本属性
区域
吉大
片区
白莲路
小区
C派公寓
产权
楼层
中楼层/共7楼
电梯
无
状态
已使用
税费
满2年
装修
精装
朝向
西南
空间结构
平层
楼龄
1989年
家具
全齐
家电
全齐
地板
磁砖
景观
无景
小学
吉莲小学
中学
第四中学
税费参考
承担卖房税费
约 6300 元
承担买房税费
买房税费主要包括:契税:(1%、1.5%、2%、3%)首套或二套<90㎡按1%,首套>90㎡按1.5%,二套>90㎡按2%,第三套起及非住宅按3%
楼层保密说明
按照总层高/3,分为低楼层、中楼层、高楼层,共三个段
* 以上基本属性和交易属性信息仅供参考,购房时以房产证/不动产证信息为准
房源描述
房子独有的特点:
C派公寓,吉大少有带小区公寓,家私电器齐全,看房方便,业主诚心出售,欢迎来电预约看房
出门就有巴士站,吉莲市场,电影院,大型商场,出行方便,配套齐全。
相关经纪人
郑静华
海湾花园二行
学区房
高端物业
粤语
中高档公寓
我的微信
扫一扫添加微信
扫码拨号
15876684381
杨方方
海湾花园二行
学区房
中高档公寓
高端物业
别墅
我的微信
扫一扫添加微信
扫码拨号
13676091225
房源图片
房贷计算器
房屋总价
63.00
贷款成数
2成
3成
4成
5成
6成
7成
8成
8.5成
贷款类别
商业贷款
公积金贷款
组合贷款
贷款年限
30年(360期)
29年(348期)
28年(336期)
27年(324期)
26年(312期)
25年(300期)
24年(288期)
23年(276期)
22年(264期)
21年(252期)
20年(240期)
19年(228期)
18年(216期)
17年(204期)
16年(192期)
15年(180期)
14年(168期)
13年(156期)
12年(144期)
11年(132期)
10年(120期)
9年(108期)
8年(96期)
7年(84期)
6年(72期)
5年(60期)
4年(48期)
3年(36期)
2年(24期)
1年(12期)
商贷贷款额
商贷利率
首套3.25
二套3.25
公积金贷款额
公积金利率
参考利率2.85
参考利率3.325
立即计算
等额本息还款
等额本金还款
首付
万
贷款总额
万
月供
元
总利息
万
本息总额
万
首付
万
贷款总额
万
月供
元
每月递减
元
总利息
万
本息总额
万
注:本次计算仅作为购房参考,结合实际情况了解更精确首付、贷款方案,建议咨询专业顾问
首付和贷款情况咨询
航拍信息
全屏观看
地理位置
交通
教育
医疗
购物
生活
娱乐
公交站
地铁站
小区信息
查看更多 >
C派公寓
小区地址
香洲区白莲路113号
建造年代
1989
小区物业
格力物业
开 发 商
格力
管 理 费
100.0 元/平米*月
在售 38 套
在租 11 套
查看全部
历史成交
查看更多 >
同类型二手房
查看全部
同类型租房
查看全部
预车看房
预约提交成功我们有专人与您取得联系
预约日期
随时
星期二
17
星期三
18
星期四
19
星期五
20
星期六
21
星期日
22
星期一
23
您的称呼
先生
女士
手机号码
短信验证码
获取验证码
输入识别码
其他要求
提交预约
相关经纪人
选择相关经纪人进行咨询联系
郑静华
海湾花园二行
学区房
高端物业
粤语
中高档公寓
我的微信
扫一扫添加微信
扫码拨号
15876684381
杨方方
海湾花园二行
学区房
中高档公寓
高端物业
别墅
我的微信
扫一扫添加微信
扫码拨号
13676091225
手机登陆
密码登陆
立即登陆
立即登陆
虚假举报
房源ID(1284493)
您的称呼
手机号码
补充描述
验证码:
提 交
【房源】虚假举报属实,奖励 100 元。
【房评】虚假举报属实,奖励 50 元。
在线委托
房源对比
咨询客服QQ
联系客服
474738599
400-168-0808
咨询客服电话
09:30 - 18:30
周一至周六
微信公众号
随时随地关注珠海楼市
微信小程序
正顺好房官方小程序
官方APP
扫描下载正顺好房网APP
专家答疑
在线留言
返回顶部
在线留言
感谢您一直以来对正顺好房网的关注和支持,如果您在使用过程中遇到问题或意见建议请留言反馈给我们,谢谢!
如需我们跟您联系或答复的话,请您留下联系方式。
姓名
电话
E-mail
*
反馈内容
验证码
提交反馈
房源对比
修改
取消
新 房
二手房
租 房