首页
新房
二手房
租房
工商铺
小区
资讯
在线委托
关于我们
二手房
地图找房
空中看房
下载正顺好房APP
下载正顺好房APP
好房好生活OKHOME
老香洲品质社区 每一间花园 户型通透 位置安静 居住舒适
空气清新
视野开阔
格局方正
采光充足
收藏
分享
分享房源
扫一扫推荐给朋友
您的位置:
正顺好房网
>
二手房
>
详情页
1
9
2
3
4
5
6
7
8
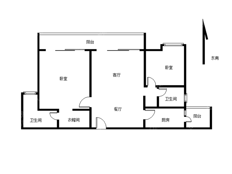
户型图
每一间花园
300.0
万
24194元/㎡
首付45万 贷款255万 月供11450元,30年(仅供参考)
2房2厅2卫
低楼层/共26楼
124㎡
精装
南
2008年建
住宅
所在区域
老香洲
房源编号
1083402
更新日期
2025-11-04
OKHOME承诺真实房源,
虚假举报
有奖
加入对比
约车看房
联系客服
基本信息
房源描述
房源点评
房源照片
小区信息
地理位置
加入对比
约车看房
推荐经纪人
基本信息
基本属性
区域
老香洲
片区
神前
小区
每一间花园
产权
商品房
楼层
低楼层/共26楼
电梯
有
状态
已使用
税费
满五唯一
装修
精装
朝向
南
空间结构
平层
楼龄
2008年
家具
无
家电
无
地板
磁砖
景观
园景
小学
十八小
中学
第七中学
税费参考
承担卖房税费
约 30000 元
承担买房税费
买房税费主要包括:契税:(1%、1.5%、2%、3%)首套或二套<140㎡按1%,首套>140㎡按1.5%,二套>140㎡按2%,第三套起及非住宅按3%
楼层保密说明
按照总层高/3,分为低楼层、中楼层、高楼层,共三个段
* 以上基本属性和交易属性信息仅供参考,购房时以房产证/不动产证信息为准
房源卖点
卖点一
1.精装修房子,大两房。
卖点二
2.看小区景色 安静住家
卖点三
3.位置安静,远离马路
卖点四
4.正规大两房设计,厅大房大,
推荐经纪人
吴官梁
金域蓝湾分店
4000781128 转 1544
我的微信
扫一扫添加微信
张苏成
棕榈假日二分行
别墅
高端物业
金融贷款
学区房
4000781128 转 1329
我的微信
扫一扫添加微信
房源图片
查看全部
房贷计算器
房屋总价
300.00
贷款成数
2成
3成
4成
5成
6成
7成
8成
8.5成
贷款类别
商业贷款
公积金贷款
组合贷款
贷款年限
30年(360期)
29年(348期)
28年(336期)
27年(324期)
26年(312期)
25年(300期)
24年(288期)
23年(276期)
22年(264期)
21年(252期)
20年(240期)
19年(228期)
18年(216期)
17年(204期)
16年(192期)
15年(180期)
14年(168期)
13年(156期)
12年(144期)
11年(132期)
10年(120期)
9年(108期)
8年(96期)
7年(84期)
6年(72期)
5年(60期)
4年(48期)
3年(36期)
2年(24期)
1年(12期)
商贷贷款额
商贷利率
首套3.00
二套3.00
公积金贷款额
公积金利率
参考利率2.85
参考利率3.325
立即计算
等额本息还款
等额本金还款
首付
万
贷款总额
万
月供
元
总利息
万
本息总额
万
首付
万
贷款总额
万
月供
元
每月递减
元
总利息
万
本息总额
万
注:本次计算仅作为购房参考,结合实际情况了解更精确首付、贷款方案,建议咨询专业顾问
首付和贷款情况咨询
航拍信息
全屏观看
地理位置
交通
教育
医疗
购物
生活
娱乐
公交站
地铁站
小区信息
查看更多 >
每一间花园
小区地址
香洲区情侣北路11号
建造年代
2008
小区物业
中化方兴物业管理
开 发 商
中化方兴房地产开发(珠海)有限公司
管 理 费
2.8 元/平米*月
在售 47 套
在租 10 套
查看全部
历史成交
查看更多 >
同类型二手房
查看全部
同类型租房
查看全部
预车看房
预约提交成功我们有专人与您取得联系
预约日期
随时
星期二
4
星期三
5
星期四
6
星期五
7
星期六
8
星期日
9
星期一
10
您的称呼
先生
女士
手机号码
短信验证码
获取验证码
输入识别码
其他要求
提交预约
推荐经纪人
选择推荐经纪人进行咨询联系
吴官梁
金域蓝湾分店
我的微信
扫一扫添加微信
扫码拨号
15819816791
张苏成
棕榈假日二分行
别墅
高端物业
金融贷款
学区房
我的微信
扫一扫添加微信
扫码拨号
18575615868
手机登陆
密码登陆
立即登陆
立即登陆
虚假举报
房源ID(1083402)
您的称呼
手机号码
补充描述
验证码:
提 交
【房源】虚假举报属实,奖励 100 元。
【房评】虚假举报属实,奖励 50 元。
在线委托
房源对比
咨询客服QQ
联系客服
474738599
400-168-0808
咨询客服电话
09:30 - 18:30
周一至周六
微信公众号
随时随地关注珠海楼市
微信小程序
正顺好房官方小程序
官方APP
扫描下载正顺好房网APP
专家答疑
在线留言
返回顶部
在线留言
感谢您一直以来对正顺好房网的关注和支持,如果您在使用过程中遇到问题或意见建议请留言反馈给我们,谢谢!
如需我们跟您联系或答复的话,请您留下联系方式。
姓名
电话
E-mail
*
反馈内容
验证码
提交反馈
房源对比
修改
取消
新 房
二手房
租 房